Летняя кухня с мангалом – это не только место для готовки на открытом воздухе, но и уютное пространство для семейных посиделок и вечерних посиделок с друзьями. Важно учесть различные виды летних кухонь, выбрать оптимальную планировку и подходящие материалы для создания комфортного и функционального места отдыха. Эта статья предлагает советы и рекомендации по обустройству летней кухни с мангалом, помогая вам создать идеальное место для приятного времяпровождения на свежем воздухе.
Какими бывают летние кухни
Варианты летних кухонь могут различаться по нескольким параметрам:
- структура;
- материалы;
- дизайн;
- планировка.
По типу конструкции летняя кухня с местом для гриля на даче может быть как открытой, так и закрытой.
Мнение эксперта:
Эксперты подчеркивают, что обустройство летней кухни с мангалом является отличным способом создать уютную атмосферу для приятного времяпровождения с семьей и друзьями. Мангал не только позволяет готовить вкусные блюда на открытом воздухе, но и становится центральным элементом общего досуга. Важно выбирать качественные материалы для строительства летней кухни и мангала, чтобы обеспечить их долговечность и безопасность использования. Правильное расположение мангала относительно кухонного пространства также играет важную роль, обеспечивая удобство при приготовлении пищи и общении. В итоге, уютная летняя кухня с мангалом становится не только местом для кулинарных экспериментов, но и центром семейных посиделок и веселых вечеров под открытым небом.

Закрытый тип кухни
В данном типе постройки присутствуют стены с окнами, полы и крыша. Обычно закрытая кухня строится из стандартных строительных материалов на легком фундаменте. Эти постройки могут использоваться в любую погоду. Внутри можно установить отопление и находиться там в течение всей зимы. В кухне можно использовать любую посуду и оборудование. Предметы интерьера не подвержены повреждениям от дождя, снега или резких изменений температуры.
Познакомьтесь также:
Как выбрать и изготовить дутье для углей для барбекю своими руками
Кроме того, в закрытой кухне можно укрыться от комаров и жары, установив кондиционер. При необходимости это помещение может служить гостевым домом.
Однако у закрытой летней кухни есть свои недостатки. Для ее постройки требуется значительное количество строительных материалов. Качество материалов должно быть высоким. Перед началом строительства необходимо разработать детальный план. Следует отметить, что процесс возведения такой кухни довольно трудоемкий.
| Элемент | Функция | Примеры материалов |
|---|---|---|
| Мангал | Приготовление пищи на открытом огне | Кирпич, металл, камень |
| Рабочая поверхность | Подготовка продуктов, сервировка | Камень, бетон, металл, дерево |
| Хранение | Хранение посуды, продуктов, принадлежностей | Шкафы, полки, ящики |
| Освещение | Обеспечение видимости в вечернее время | Электрические лампы, фонари, солнечные батареи |
| Покрытие | Защита от солнца, дождя | Крыша, навес |
| Мебель | Место для сидения и обеда | Столы, стулья, кресла |
Интересные факты
- Инновационный дизайн с встраиваемым мангалом:Современные летние кухни могут быть оснащены мангалом, встраиваемым в столешницу, что обеспечивает удобство и элегантный вид без необходимости отдельного гриля.
- Экологичная энергоэффективность:Солнечные панели, светодиодное освещение и системы сбора дождевой воды становятся все более популярными для летних кухонь, позволяя экономно использовать энергию и снижать углеродный след.
- Многофункциональное пространство для развлечений:Летние кухни с мангалом выходят за рамки простого приготовления пищи. Они становятся социальным центром для барбекю, вечеринок и времяпрепровождения на свежем воздухе, предлагая зону отдыха, встроенный холодильник и даже барную стойку.

Открытая кухня
Конструкция, выполненная по принципу террасы или беседки с навесом, представляет собой площадку, выложенную бетоном или тротуарной плиткой, окруженную балками для поддержки навеса.
Также существуют полуоткрытые варианты с одной, двумя или тремя стенами, часто дополненные деревянными или металлическими ограждениями.
Открытая постройка строится по простой схеме, что позволяет быстро завершить работы и минимизировать расход материалов. В одной части такой постройки обычно располагается зона отдыха, а в другой – кухонная зона.
Недостатки открытой кухни:
- Отсутствие защиты от дождя и насекомых;
- Неудобство использования в зимний период;
- Необходимость специальной техники для эксплуатации на улице.
Советы по выбору места для летней кухни
При выборе места для установки летней кухни с барбекю и мангалом, важно учитывать несколько ключевых факторов:
- Характер окружающего ландшафта;
- Размер доступного участка;
- Расстояние до основного жилого строения;
- Вид, открывающийся с террасы или из окон.
При выборе места для кухни любого типа, важно учитывать удалённость от шумных дорог. Также не рекомендуется размещать кухню между жилым домом и входом в резиденцию. Идеальным вариантом будет установка кухни в тени высокого дерева, чтобы обеспечить защиту от солнца и ветра.
Размер кухни должен соответствовать площади участка. Расстояние до основного жилого строения также играет важную роль. Климатические условия также следует учитывать при выборе места. Если вид из кухни не является привлекательным, можно обратить внимание на дизайнерские решения для улучшения общего впечатления.

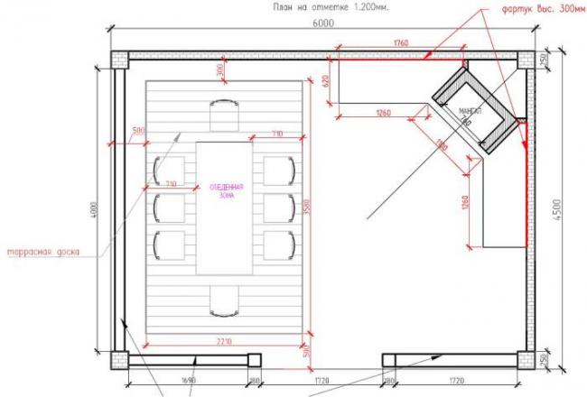
Планировка и расположение
Планировка
С точки зрения дизайна, летняя кухня аналогична стандартной кухне внутри дома. В рабочей зоне устанавливают раковину, плиту и место для приготовления пищи. В некоторых случаях обычную кухню заменяет зона с мангалом, где можно готовить на открытом огне. Остальную часть пространства оформляют мебелью для отдыха, идеально разместить там удобный угловой диван, а также стол с стульями.
Часто можно увидеть кухню, объединенную с баней, кладовкой для инвентаря или гостевым домом. Такие проекты позволяют экономить ценное пространство.
Расположение
Создание летней кухни может быть как автономным сооружением, так и пристроенным к основному дому. Присоединенная кухня более удобна для обустройства коммуникаций. Наличие летней кухни увеличивает общую площадь жилого пространства, что придает зданию более внушительный вид.
Преимущества отдельно стоящей кухни: она не загораживает дом от солнечного света, украшает зону отдыха и может иметь самые разнообразные формы. Если кухня находится вдали от основного дома, запахи от готовки не будут распространяться по жилым помещениям.
Варианты проектов летних кухонь с барбекю
Летняя кухня может быть оформлена в различных стилях и дизайнах. Некоторые предпочитают построить уютную беседку, в то время как другие выбирают навес или террасу. По желанию можно разработать проект летней кухни с встроенным барбекю, чтобы создать комплекс со множеством функциональных элементов.
С баней и террасой
На небольшом участке можно объединить несколько зданий. Часто кухню объединяют с баней и террасой. Лаундж-зона может быть очень разнообразной.
Если кухня и баня объединены, установка коммуникаций становится проще и дешевле. Подключение, например, водопровода к одному объекту упрощает процесс. В кухне нет необходимости устанавливать санузел, так как он уже есть в бане.
Многофункциональное здание можно построить вдали от жилого дома. Лаундж-зону не обязательно оборудовать в бане, так как для этого есть терраса с кухней.
Квадратная кухня
Имеет простую конструкцию и легкое строительство. Можно создать план с размерами, предназначенный для базового планирования и трёхстороннего остекления. Кухня может находиться отдельно или быть пристроена к дому через фасад без окон. Также здесь можно разместить баню или хозяйственное помещение.
Кухня-беседка
Существуют и другие варианты создания зоны для барбекю, например, строительство деревянной беседки с жаровней и дымоходом. Такие постройки могут прекрасно дополнить любой ландшафт.
Для такой беседки не требуется огромная площадь. В ней легко разместить стол, стулья и скамейки. Благодаря наличию барбекю и дымохода можно готовить шашлыки на открытом огне прямо внутри беседки. Также рядом с печкой можно установить рукомойник.
Материал для строительства и фундамент
После определения формы и стиля кухни необходимо выбрать материалы для строительства. Существует несколько популярных вариантов для этого.
Летняя кухня с мангалом из кирпича
Кирпичные постройки – это символ прочности и долговечности. Они обеспечивают уют и комфорт даже в холодное время года, благодаря отличной теплоизоляции. При этом уход за такими зданиями минимален.
Если у вас нет опыта в строительстве, лучше всего обратиться к профессионалам.
Важно помнить, что для кирпичной кладки требуется надежное фундаментное основание. Лучшим выбором в данном случае будет ленточный фундамент.
Деревянный брус
Данный стройматериал часто используется для возведения беседок, веранд и летних кухонь. Деревянный брус отличается легкостью и простотой монтажа. Строительство сооружения может быть завершено всего за несколько дней. Кроме того, стоимость материала заметно ниже, чем у кирпича.
Тем не менее, брус требует регулярного ухода и обработки. Необходимо применять специальные составы как в процессе строительства, так и в процессе эксплуатации постройки. Недостаточный уход может существенно сократить срок службы сооружения.
Прочие стройматериалы
Варианты альтернативных материалов, которые чаще всего применяются:
- Металл. Прост в установке, идеально подходит для быстрого строительства и имеет длительный срок службы. Не требует массивного фундаментного основания.
- СИП-панели. Отличный выбор для обшивки. Легкие и не требуют крепкого фундамента.
- Поликарбонат. В настоящее время широко используется для летних построек. Благодаря легкости плит, прочный каркас необходимости не имеет.
Фундамент
Часто летняя кухня представляет собой легкую конструкцию. Основание может служить полом, иногда без заливки.
- Сначала участок очищается от растительности и мусора.
- Затем удаляется верхний слой почвы.
- Один угол отмечается колышком или прутом, затем устанавливаются остальные 3 элемента. Для точного расположения проверяется равенство диагоналей, а в качестве ориентира используется толстая веревка.
Дальнейшие работы по заливке зависят от выбранного типа фундамента.
Возведение стен и крыши
Для создания основы используется массивный брус размером 10х10 сантиметров. Четыре бруска соединяются между собой и устанавливаются на железные бетонированные штыри. На этих штырях устанавливаются столбовые опоры.
Для усиления конструкции со всех сторон применяется обвязка из бруса, которая выполняет функцию перил. Пол может быть отделан половыми досками или тротуарной плиткой.
Крышу строят на основе стропил из бруса, покрывая их кровельным материалом. Простейшая конструкция – односкатная крыша с наклоном от двери. Двускатная крыша оснащается наклонными или подвесными стропилами.
Внутренняя отделка и обустройство
При обустройстве летней кухни важно учитывать финансовые возможности. При возведении капитальной постройки необходимо уделить внимание внутренней отделке стен. Для обеспечения теплоизоляции и защиты от плесени между стенами и облицовкой укладывается утеплитель и гидроизоляция. Дизайн интерьера может быть выбран в соответствии с любым стилем, но отделочные материалы должны быть устойчивы к экстремальным температурам и заморозкам.
Для быстрого и экономичного обустройства летней кухни необходимо разработать четкий план. Сначала определяется местоположение и площадь будущего строения. Затем определяется функциональное назначение помещения. После этого выбирается тип конструкции.
Нюансы организации рабочей зоны и мангала, барбекю или печи в летней кухне
В соответствии с общепринятым правилом, расстояние между холодильником, мойкой и плитой должно быть на расстоянии нескольких шагов друг от друга. Это правило важно даже для небольших кухонь.
Вот несколько вариантов размещения плиты или жаровни в зависимости от планировки:
- На небольших площадях можно организовать Г-образное размещение. В случае узкого пространства, мебель располагается в два ряда.
- Квадратную площадь можно обустроить П-образной планировкой.
- При размещении мангала на улице, зону для готовки с мойкой рекомендуется разместить возле двери.
Идеальным вариантом будет, если расстояние между зоной готовки и местом отдыха составит три метра.
Летняя кухня с мангалом станет отличным дополнением к ландшафтному дизайну и местом для приема гостей. Закрытые конструкции позволяют готовить и наслаждаться природой в любое время года. А у вас на даче есть летняя кухня? Какой тип предпочтительнее: открытый, закрытый или полуоткрытый? Стоит ли проводить дополнительные коммуникации на летнюю веранду? Какие отделочные материалы вы выбрали для реализации проекта на вашем участке? Поделитесь своим мнением в комментариях ниже!
Выбор мангала или барбекю
Обустройство летней кухни с мангалом
При обустройстве летней кухни с мангалом важным шагом является выбор между мангалом и барбекю. Оба устройства предназначены для приготовления пищи на открытом воздухе, но имеют свои особенности.
Мангал – это традиционное устройство для жарки мяса, рыбы и овощей. Он обычно имеет простую конструкцию из металла и предназначен для использования с дровами или углем. Мангал позволяет создать аутентичный вкус блюд и придать им особый аромат.
Барбекю, или гриль, чаще имеет более современный дизайн и может быть электрическим, газовым или угольным. Гриль обычно оборудован решеткой для жарки и крышкой, что позволяет регулировать температуру и готовить пищу более равномерно.
При выборе между мангалом и барбекю стоит учитывать предпочтения в приготовлении пищи, доступное пространство, бюджет и удобство использования. Некоторые предпочитают классический вкус, который дает мангал, в то время как другие предпочитают удобство и функциональность гриля.
Важно также учесть материал, из которого изготовлены мангал или барбекю, их размеры, легкость в сборке и транспортировке. Выбрав подходящее устройство, можно создать уютную и функциональную летнюю кухню с возможностью приготовления вкусных блюд на свежем воздухе.
Частые вопросы
Что должно быть на летней кухне?
печь,мангал,мойка для посуды,стол для готовки,обеденный стол,стулья,полки или ящики для посуды,тумба под посуду.3 дек. 2021 г.
На каком расстоянии от забора можно построить летнюю кухню?
Согласно общим правилам расстояние от дома до забора соседа должно составлять минимум 3 метра. Такая же дистанция предусмотрена и для других построек, расположенных на участке.
Какие бывают летние кухни?
Какими бывают летние кухни Итак, конструкции летних кухонь условно можно разделить на два вида: закрытые и открытые. Открытые представляют собой простую постройку без стен, крыши, утепления. Это открытое пространство с барбекю зоной, рабочим пространством и местом для приема пищи.
Нужно ли оформлять летнюю кухню?
Таким образом, согласно законодательству регистрировать нужно будет летнюю кухню, гаражи, бани, сараи и другие подобные строения, а колодец, теплицу, навес, мангальную зону, душевую и т. д. регистрировать не нужно.
Полезные советы
СОВЕТ №1
Разместите мангал на безопасном расстоянии от дома и других построек, чтобы избежать возможности возгорания.
СОВЕТ №2
Подумайте о создании удобной зоны отдыха рядом с мангалом: установите столы, стулья, зонты для создания комфортной атмосферы.
СОВЕТ №3
Используйте натуральные материалы для обустройства летней кухни с мангалом, чтобы сохранить природную красоту и гармонию.















